Innenausbau, Baueingaben, Projektleitung, Bauleitung, Fachplanung, Montage
GL-Baumanagement AG
Referenzen

Referenzen

Büro Umbau 2025, Hüttwilen

Umbau unseres gemieteten Bürogebäude. Neue Türen, Fenster, Bodenbeläge und Ablagen. 
Sowie sehr viel Farbe. 

Um- und Ausbau Einfamilienhaus, Wilen

Planung, Zeichnung und Umbau des Einfamilienhauses. 

Die Baubewillligungspläne, inklusive Fertigungspläne. 

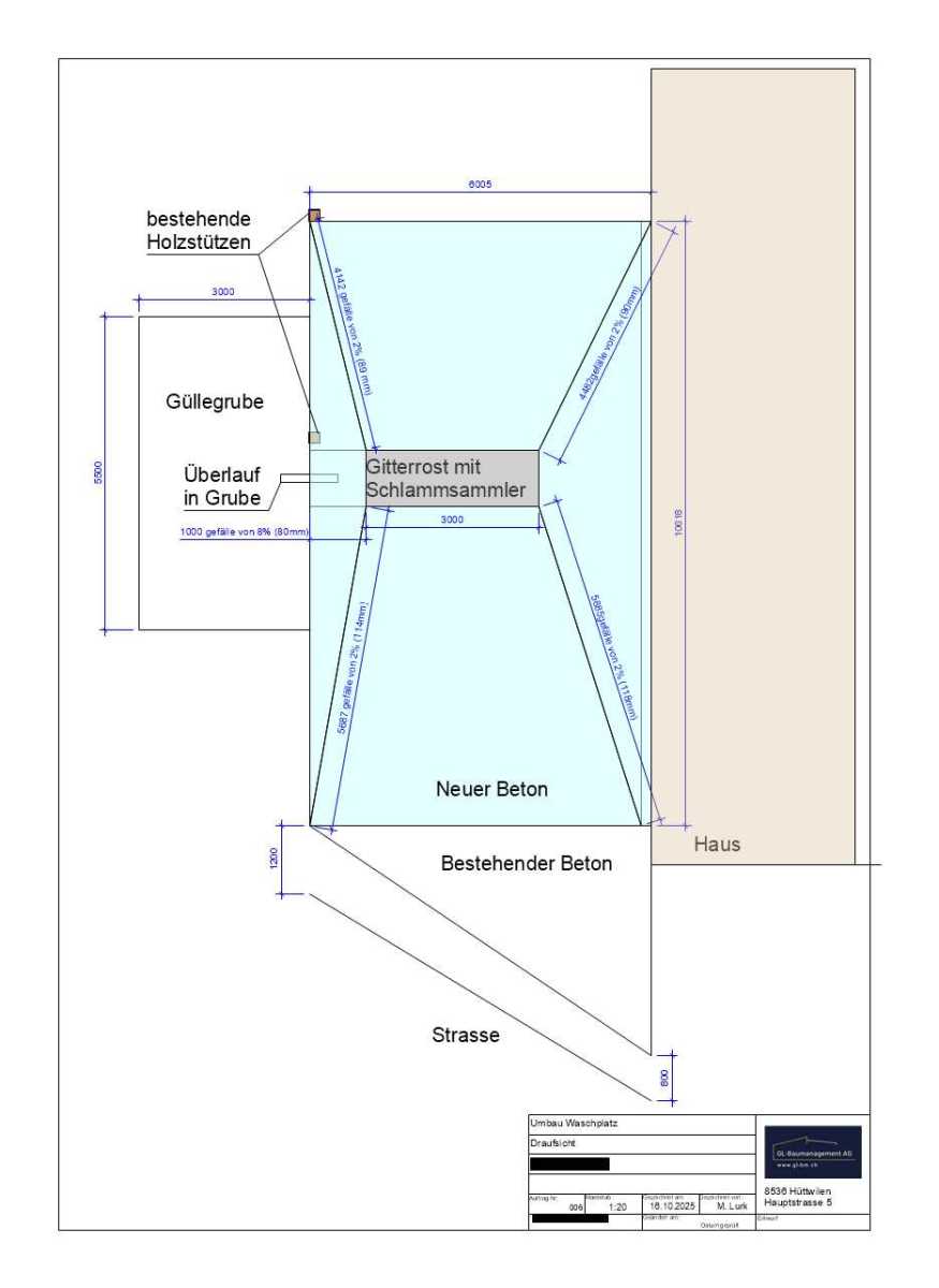
Umbau Waschplatz, Hüttwilen.

Planung, Baueingabe und Bauleitung für den neuen Waschplatz.

Innenausbau, Wil

Planung und Baueingabe für den Umbau im Aussenbereich.
Neue Gestaltung des Innenbereichs mit neuer Treppe ins Dachgeschoss. Erneuerung der Türen, Bodenbeläge, Wände sowie neue Einbauschränke.

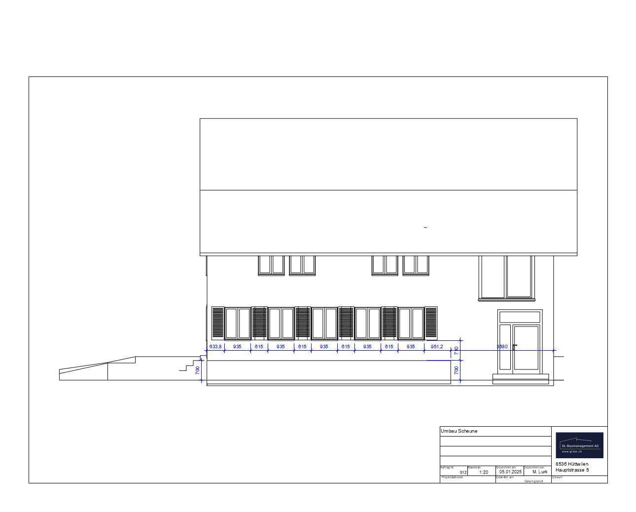
Scheunen Ausbau, Turbenthal

Ausbau einer Scheune als Wohnung. 
Neue Aufteilung und Planung des Innenausbaus als 2-3 Zimmer Wohnung.